Permohonan perlu dilakukan secara manual di Kaunter Bahagian Pembangunan dan Kemajuan Tanah Tingkat 4 Pejabat Tanah dan Galian Selangor dengan melengkapkan Borang Permohonan. Syafianzaazwanselangorgovmy UNIT BAHAN BATUAN MINERAL 03-5544 7530 mohdrafiselangorgovmy.
Senarai Semak Pindah Milik Rumah Baru Pdf
2

Nak Uruskan Pindahmilik Tanpa Lantik Peguam Najib Mohamed
4 Tandatangan borang tempahan.
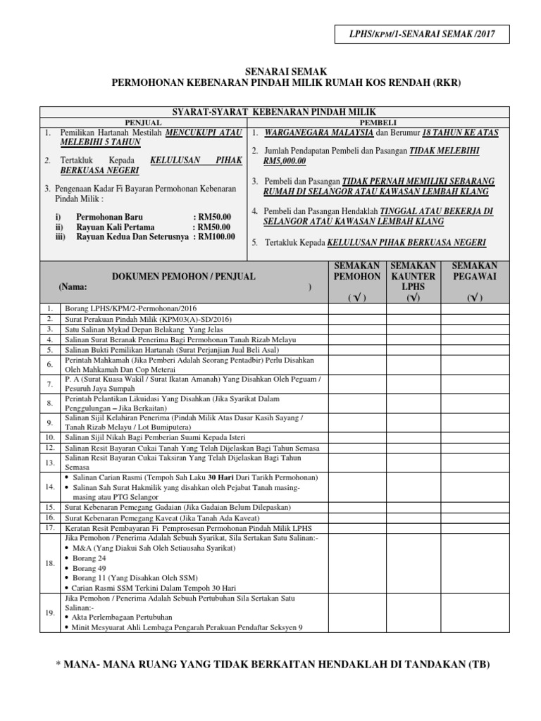
Borang permohonan kebenaran pindahmilik selangor. Proses pindahmilik boleh terus dilakukan bagi hakmilik yang tiada sekatan kepentingan atau batasan kaveat tetapi bagi hakmilik yang mempunyai sekatan kepentingan atau batasan kebenaran daripada pihak berkenaan perlu diperolehi terlebih dahulu. Jika tak ikut proses beli rumah boleh timbul masalah dan paling teruk pemilik boleh menuntut wang tempahan booking fee anda. Borang 7D -Tukar Syarat Seksyen 124A.
Paparan terbaik Microsoft Internet Explorer 70 Netscape 50 Mozilla FIrefox ke atas dan resolusi 1024 x. UNIT KEBENARAN PINDAHMILIK MENYELURUH BLANKET CONSENT 03-5544 7816 nashratulnurselangorgovmy UNIT KEBENARAN PINDAHMILIK WARGANEGARA ASING INDIVIDU SYARIKAT TANAH LADANG 03-5520 5638 hidayahshaariselangorgovmy. Borang 14A ini merupakan Borang Pindahmilik Tanah Bahagian atau Pusaka.
Anda perlu mengisi beberapa borang bersama-sama dengan penama rumah dan beberapa pihak yang berkenaan. Permohonan yang telah diterima dan didapati mempunyai dokumen yang tidak lengkap akan ditolak berkuat-kuasa 12 april 2021. Pejabat Pengarah Tanah dan Galian Wilayah Persekutuan Aras G-6 Rumah Persekutuan Jalan Sultan Hishamuddin 50678 Kuala Lumpur.
Borang 7D -Tukar Syarat Seksyen 124A. Borang Permohonan Kebenaran PindahMilik Rumah Kos Rendah Versi 2017 3Borang Permohonan Kebenaran PindahMilik Kedai Kos Rendah. Makluman berkenaan proses permohonan kebenaran bagi hakmilik berksekatan kepentingan unit pindahmilik dan lelongan.
Borang Permohonan Kebenaran Pindahmilik DanAtau Gadaian. Lembaga Perumahan dan Hartanah Selangor tidak akan bertanggungjawab bagi sebarang kehilangan dan kerugian yang disebabkan oleh penggunaan maklumat yang diperolehi dari laman ini. Paparan terbaik menggunakan Internet Explorer 9 ke atas Mozilla Firefox atau Google Chrome dengan resolusi melebihi 1024 x 768 pixel.
Borang 51 O 17032014. Borang 433B - Permohonan Kebenaran Pindahmilik Warga Asing. Borang Permohonan Pendaftaran Rumah SelangorKu Jenis A.
Borang 26A - Pemberitahuan Pertukaran Alamat. Logout 4 Maklumat pada Borang Kebenaran Menggunakan Kenderaan Sendiri bagi perjalanan melebihi 240 km lengkap 5 Surat penjelasan tidak berkongsi kenderaan tidak menaiki bas yang disediakan disahkan oleh Ketua JabatanDekan 6 Resit asal hotel alamat lojing 7 Resit tol atau salinan kad touch n go dan perincian penggunaan setiap stesen tol kereta bas van lori bpk. Permohonan pindahmilik hanya boleh dibuat selepas 5 tahun dari Perjanjian Jual-Beli dengan kebenaran Pihak Berkuasa Negeri.
Pindahmilik adalah satu proses untuk menukar nama pemilik berdaftar di dalam suratan hakmilik. Beza antara Carian Rasmi dan Carian Persendirian adalah carian rasmi bertujuan untuk mendapatkan satu salinan yang sah dari Pejabat Tanah untuk tujuan dilampirkan bersama dengan apa-apa borang permohonan rasmi yang akan dibuat oleh pemohon manakala bagi carian persendirian pula adalah merupakan carian untuk mendapatkan maklumat untuk kegunaan sendiri sahaja. Borang A i - Wakil Firma.
Selepas anda bersetuju dengan harga tiba masanya untuk tandatangan borang tempahan atau booking form. Borang 14A Kanun Tanah Negara. Borang 433B - Permohonan Kebenaran Pindahmilik Warga Asing.
Majlis Bandaraya Subang Jaya tidak akan bertanggungjawab keatas sebarang kerosakan di atas penggunaan apa jua. Borang Permohonan Kebenaran Gadaian. Borang ini perlu diisi oleh penama rumah pembeli dan penjual rumah tersebut.
Suratan HakmilikCatatan Carian Rasmi atas nama PenjualSurat Kebenaran Pindahmilik dari Pejabat Tanah jika ada sekatan pindahmilik daripada pihak berkuasa ATAU Suratan Hakmilik atas nama ahli ATAU Borang Pindahmilik KTN 14A atas nama pemilik. Antara borang yang perlu diisi adalah seperti berikut. Pemohon atau pasangan tidak pernah memiliki rumah sama ada melalui projek kerajaan atau swasta di Selangor.
Borang Permohonan Kebenaran Pindahmilik DanAtau Gadaian Kasih Sayang 5. Borang pengemaskinian maklumat Rumah Selangorku Sila ambil perhatian semua Pendaftaran Permohonan Rumah SelangorKu perlu dibuat secara atas talian. Pembelian rumah adalah untuk didiami dan tidak boleh untuk disewa.
Permohonan ini diperlukan bagi semua proses yang melibatkan pindahmilik gadaian dan sebagainya. Beri perhatian kepada terma-terma dalam borang ini kerana ianya sangat penting. Borang Permohonan Kebenaran Pindahmilik.
Bayaran Pendaftaran Pindah Milik Selangor
Makluman Kaunter Pejabat Tanah Dan Galian Selangor Facebook
2

Jabatan Ketua Pengarah Tanah Galian Persekutuan Consent Online

Photos At Bgn Lee Yan Lian Jln Tun Perak

Borang Kebenaran Waris
2
2